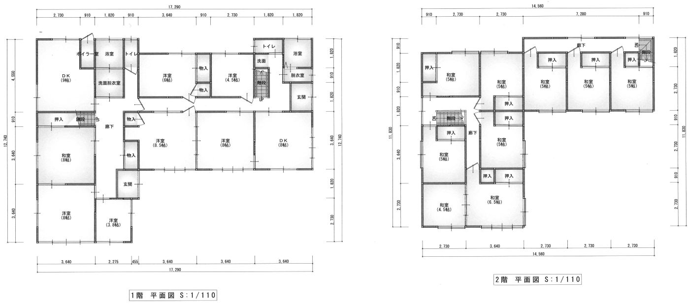
- 畑田中古住宅
- 価格:800万円
- 所在地:岩手県久慈市畑田26-137-2 畑田中古住宅
- 間取り:3DK
- 物件番号:
| 種別 | 建付土地 | 価格 | 800万円 | ||
|---|---|---|---|---|---|
| 地目 | 宅地 | 用途地域 | 第一種低層住居専 | ||
| 都市計画 | 非線引き区域 | 地勢 | |||
| 土地面積 | 318.13m² | 土地坪数 | 坪 | ||
| 土地面積計測方式 | 公簿 | 私道負担面積 | m² | ||
| 建ぺい率 | 40% | 容積率 | 80% | ||
| 土地権利 | 所有権 | 接道状況 | 二方(除角地) | ||
| 接道方向1 | 東 | 接道間口1 | |||
| 接道種別1 | 公道 | 接道幅員1 | 10m | ||
| 接道方向2 | 南 | 接道間口2 | |||
| 接道種別2 | 公道 | 接道幅員2 | |||
| 小学校区 | 久慈 | 中学校区 | 久慈 | ||
| 交通 | バス(市民バス 久慈高校前 停歩2分) |
駐車場 | |||
| 近接施設 | 久慈高等学校・畑田保育園 | ||||
| 設備 | プロパンガス 公営水道 | ||||
| 備考 |
※別途費用 仲介手数料330,000円(税込み) ※販売価格には、仲介手数料及び登記申請料等は含まれておりません。 ※昭和46年新築・昭和53年増築 ※2世帯住宅、寮を営んでおりましたので2階に部屋数多数あります。社宅向けかも・・・ |
||||
| 自社物 | 自社物 | 状態 | |||
| 情報更新日 | 物件番号 | ||||
Loading...

























